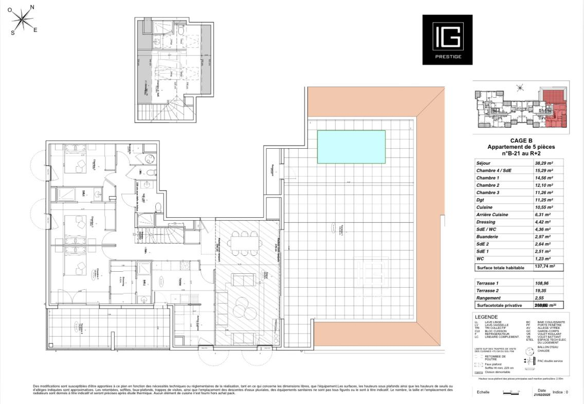
T5 – Comme une Villa sur le toit 137 m2 + 128 m2 de terras
“Agences de France” – Réseau d’Agences immobilières en France
- 1 550 000 €
Description
Au coeur de Bandol, dans une résidence contemporaine sécurisée à deux pas des plages et du centre, découvrez ce T5 en attique de 137 m2 habitables, véritable villa sur le toit.
Il offre un vaste séjour de 38 m2, 4 chambres dont une suite, plusieurs salles d’eau, dressing et buanderie.À l’extérieur, plus de 128 m2 de terrasses prolongent les espaces de vie, avec vue dégagée et prestations haut de gamme dont une piscine privative.
Aménagement entièrement modulable avant livraison, pour créer un bien unique et sur-mesure.
Résidence RE2020, stationnements en sous-sol, finitions premium.
Un bien rare alliant élégance, confort et emplacement privilégié.
Bien présenté par Agences de France par délégation.
Agences de France ? SIREN : 899413603 ? Titulaire de la carte T : 29012021000000009 non habilité à percevoir des fonds
Détails
Updated on avril 30, 2026 at 11:37 pm- ID de propriété: HZ1238695
- Prix: 1 550 000 €
- Surface de la propriété: 137.74 m²
- Chambres: 4
- Pièces: 6
- Salle de bains: 1
- Année de construction: 2026
- Type de propriété: Appartements, Appartements de luxe
- Statut de la propriété: Vente
- ID propriété source : getkey_u_514668356
Détails supplémentaires
- Type de chauffage: individuel électrique
- Type de cuisine: aucune
- Nombre terrasses: 2
- Nombre de lots de la copropriété: 27
- Syndicat des copropriétaires en procédure: NON
- Honoraires à la charge de: Vendeur
- Prix du bien hors honoraires acquéreur: 1552385€
Fonctionnalités
Adresse
-
Ville: Bandol
-
Etat / Pays: Var
-
Zip/Postal Code: 83150
-
Pays: France
Coordonnées
Voir les annonces- DOMENJOD HELENE
- 06 22 60 36 30








