Malouinière en coeur de ville, cadre calme et proche de tout
EXPERTIMO : Réseau de Conseillers Immobiliers Expérimentés
Téléphone : + 33 ( 0)4 90 01 91 22
- 799 000 €
Description
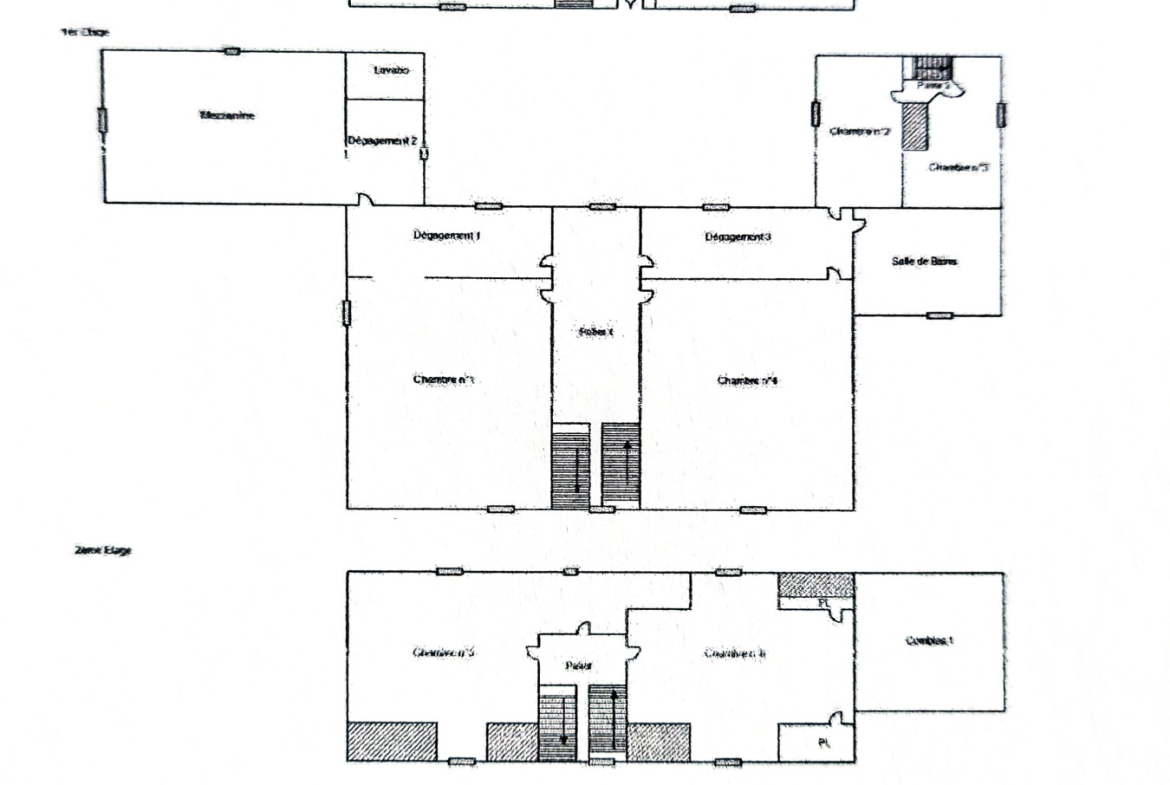
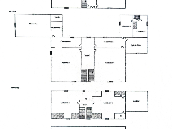
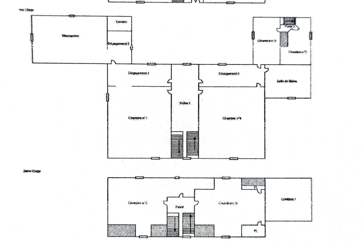
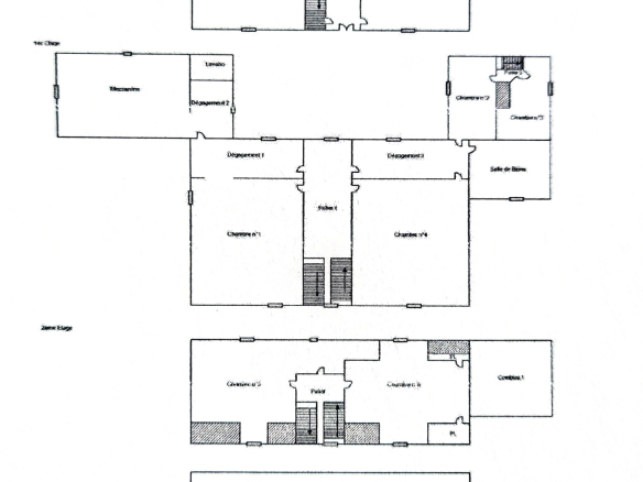
Nichée dans une rue très calme, entourée d’autres belles demeures de caractère, cette malouinière profite d’un emplacement de choix en plein coeur de Saint-Malo. Vous serez à proximité immédiate des commerces, des écoles. La maison composée d’un corps central agrémenté de deux pavillons en saillie avec entrées indépendantes (mais reliés de l’intérieur), dispose d’une ravissante cour, d’un jardin, d’une magnifique cage d’escalier, ajoutant encore à son charme. Parcelle de 899m2.
Il s’agit d’un projet de réhabilitation, travaux importants à prévoir. Un permis de construire a déjà été accordé pour la création de six logements et de leurs stationnements mais la propriété peut également convenir à une résidence principale. Les investisseurs y trouveront un véritable potentiel : la malouinière a déjà bénéficié d’un traitement fongicide et d’un désamiantage complet, offrant une base saine pour vos projets de valorisation.
Les informations sur les risques auxquels ce bien est exposé sont disponibles sur le site Géorisques : www.georisques.gouv.fr – Annonce rédigée et publiée par un Agent Mandataire –
Détails
Updated on avril 11, 2026 at 4:08 am- ID de propriété: HZ1151171
- Prix: 799 000 €
- Surface de la propriété: 400 m²
- Chambre: 0
- Pièces: 15
- Salle de bains: 0
- Type de propriété: Immeubles, Investissements immobiliers
- Statut de la propriété: Vente
- ID propriété source : 2300_99812
Détails supplémentaires
- Type de cuisine: aucune
- Orientation: Sud, Nord
- Surface de la cave: 35
Fonctionnalités
Adresse
-
Ville: Saint-Malo
-
Etat / Pays: Ille-et-Vilaine
-
Zip/Postal Code: 35400
-
Pays: France
Coordonnées
Voir les annonces- Armelle DUCRAY
- 0681308985







