À VENDRE – HÔTEL PARTICULIER – AVENUE FOCH
- 10 815 000 €
Description
Michaël Zingraf vous propose:
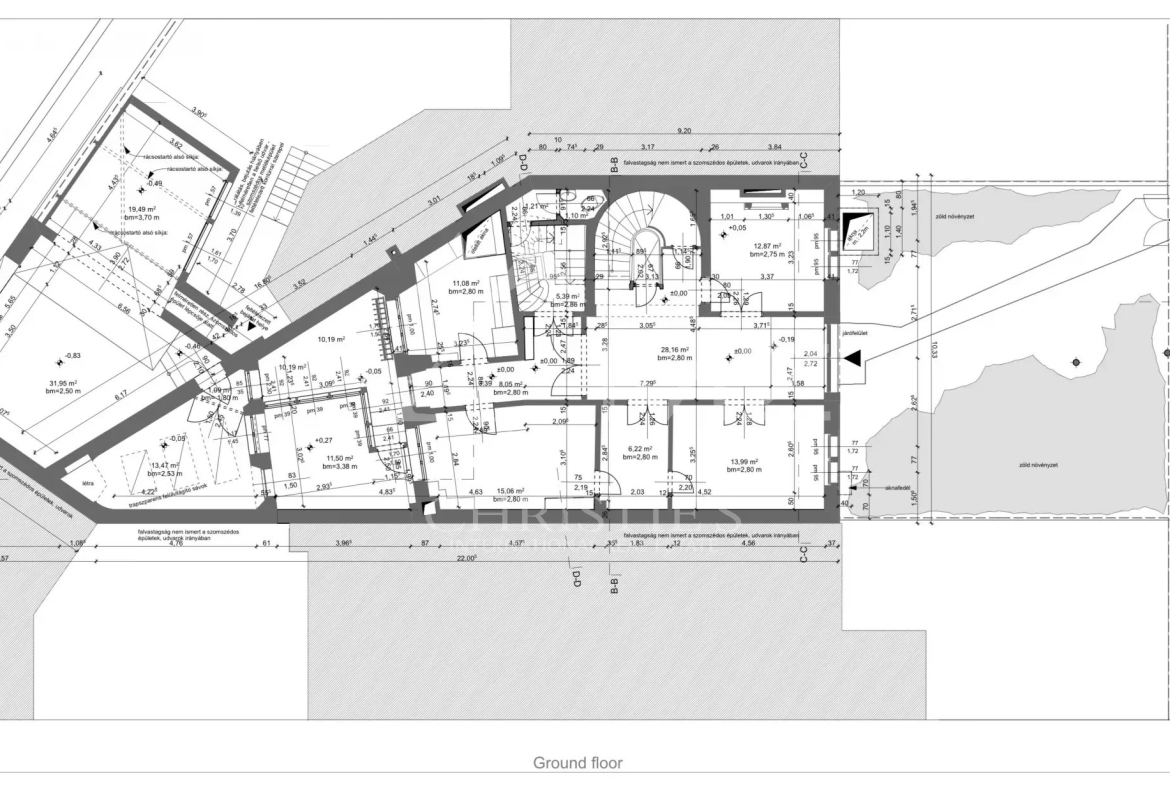
Situé dans la meilleure partie de l’avenue Foch, côté pair, à proximité de l’Arc de Triomphe, un hôtel particulier de 510 m2 avec ascenseur bénéficiant d’environ 200 m2 de jardin, le tout exposé plein sud.
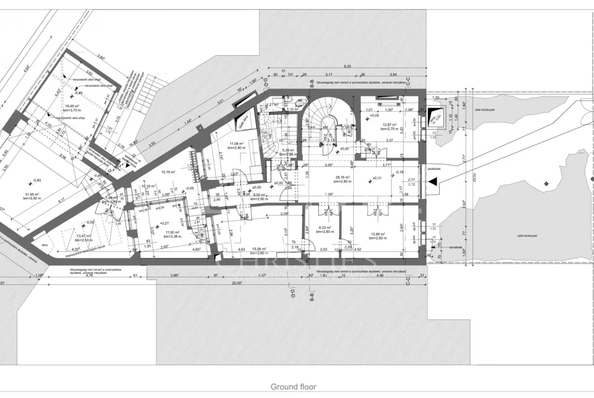
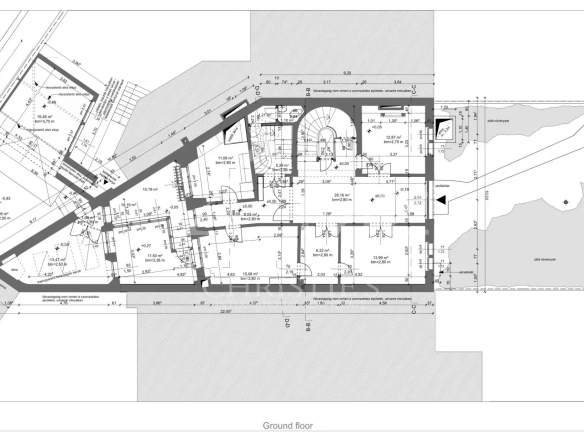
Le bien comprenant :
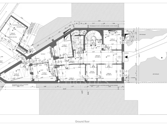
– Au rez-de-chaussée : une entrée, deux salons d’attente, espace pour la sécurité.
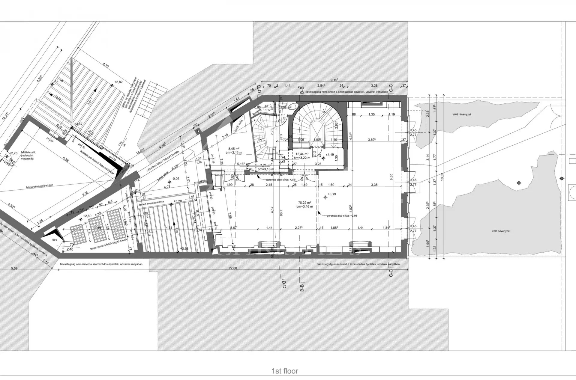
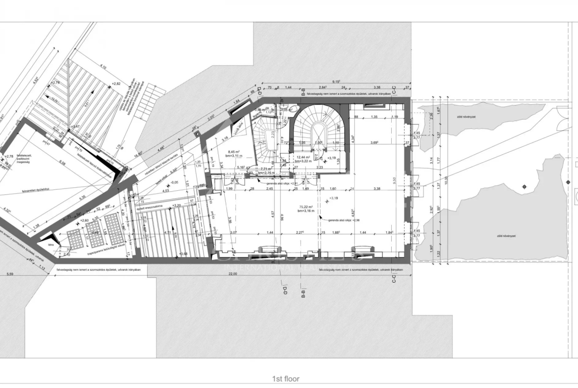
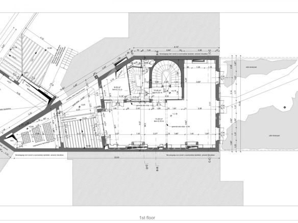
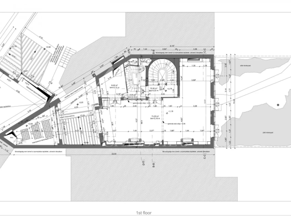
– A l’étage : un grand salon réception, cuisine indépendante à refaire.
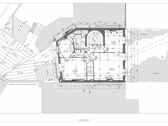
À l’étage suivant, plusieurs suites pouvant être créées, plan identique pour l’étage suivant.
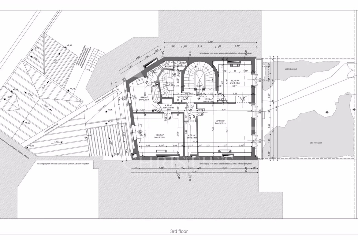
Le dernier niveau peut être transformé en loft ou être décaissé en terrasse.
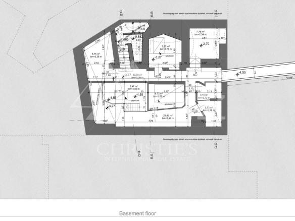
Le bien dispose d’un parking, l’ensemble est à refaire.
Détails
Updated on mars 7, 2026 at 4:20 pm- ID de propriété: HZ1156867
- Prix: 10 815 000 €
- Surface de la propriété: 509.57 m²
- Chambres: 10
- Pièces: 12
- Salles de bains: 3
- Type de propriété: Hôtel particulier, Immeubles
- Statut de la propriété: Vente
- ID propriété source : 7346491
Détails supplémentaires
- Type de bien: Immeuble
- Type de chauffage: Fioul / Mazout
- Vue: Dégagée Jardin Ciel
- Nombre d'étages: 5
- Condition: À rafraîchir
- Amiante: Réalisé
- Électricité: Réalisé
- État des Risques et Pollutions (ERP): Réalisé
- Plomb: Réalisé
- Termites: Réalisé
- Loi Carrez: 515 m²
Adresse
-
Ville: Paris 16ème
-
Etat / Pays: Paris
-
Zip/Postal Code: 75016
-
Pays: France
Classe énergétique
Coordonnées
Voir les annonces- Michaël Zingraf Paris Rive Gauche
- +33 (0)1 88 40 11 11












